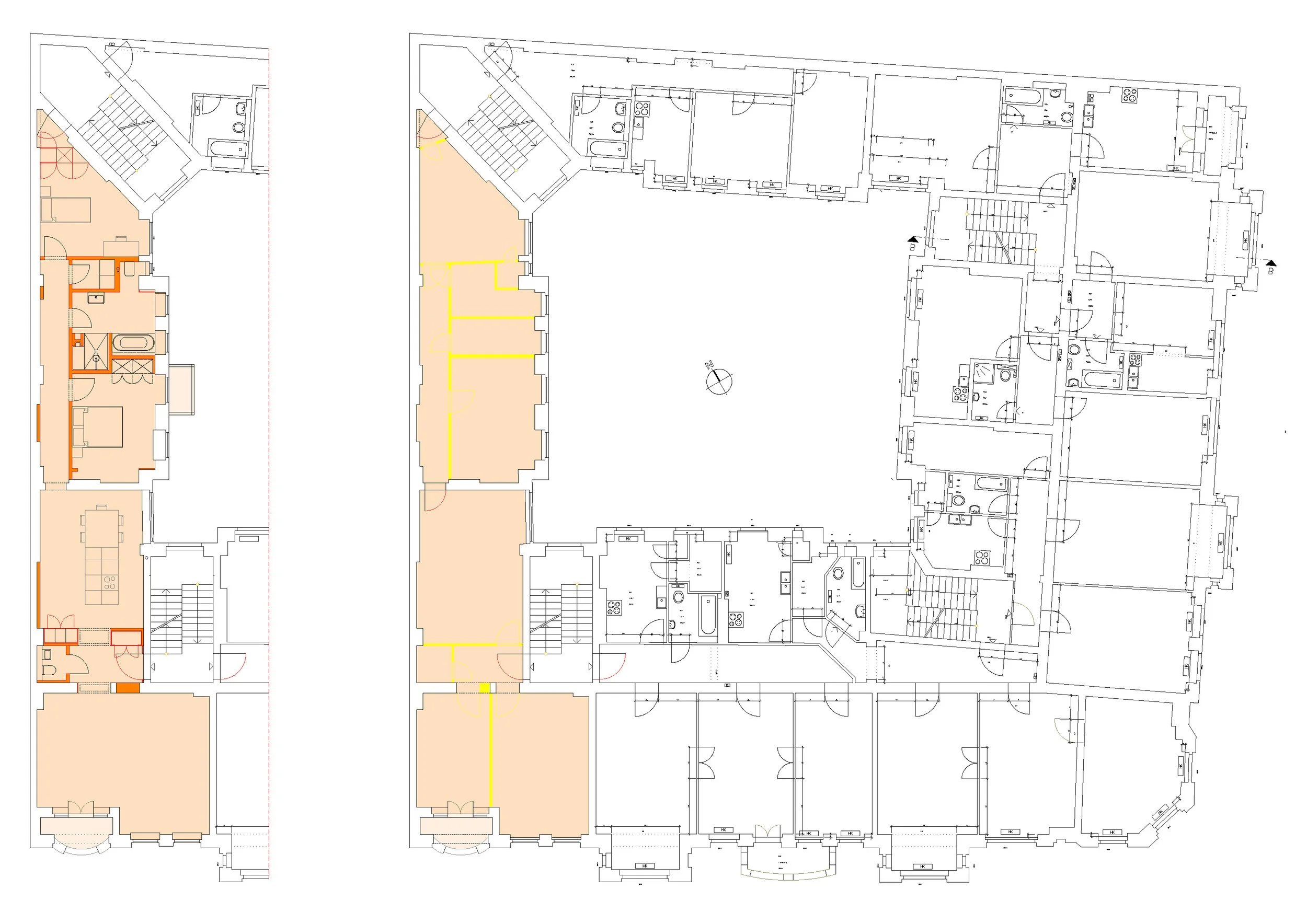
Paul-Lincke-Ufer 4 17. Feb. Verfasst von Thomas Dietzsch Umbau einer Altbauwohnung in Berlin-KreuzbergFertigstellung 2021 Thomas Dietzsch
Paul-Lincke-Ufer 4 17. Feb. Verfasst von Thomas Dietzsch Umbau einer Altbauwohnung in Berlin-KreuzbergFertigstellung 2021 Thomas Dietzsch